ル・リアン
7.7万円
管理 / 共益費 4,000円
関西本線「奈良」駅バス21分奈良交通「南方町」停歩2分
近鉄難波・奈良線「近鉄奈良」駅バス13分奈良交通「南方町」停歩2分
桜井線「京終」駅徒歩6分
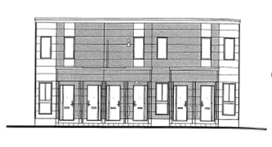
【外観パース】
-
バストイレ別
-
TVモニタ付きインターホン
-
独立洗面台
-
浴室乾燥機
-
ネット使用料無料





- 保証金
- -
- 敷引 / 償却
- - / -
- 敷金積み増し
- -
- その他初期費用
- 合計1.705万円 ( 内訳:消毒施工料1.705万円 )
- その他月額費用
- -
- 間取り / 詳細
- 1LDK
L 9.8帖 1室/洋室 4.2帖/その他 2.2帖 - 向き
- 西
- 専有面積
- 42.14㎡
- バルコニー
(テラス)面積 - -
- 所在階 / 階建て
- 2階 / 2階建
- 建物構造
- 木造
- 築年月
- 2026年7月(予定)
- 種別
- アパート
- 保険会社 / 料金
- 有 住宅総合保険 18,000円 / 2年
- 保証会社 / 料金
- - / -
- 駐車場
- 空有 5,500円 (税込)
- 現況
- 未完成
- 入居可能時期
- 2026年07月中旬予定
- その他条件
- 消毒施工料:1万7,050円
- 設備条件
-
- 2人入居可 / 学生相談 / 都市ガス / 公営水道 / 公共下水 / 電気有 / 照明器具付き / 駐輪場 / 洗濯機置場有 / 敷地内ごみ置き場 / ガスコンロ / コンロ2口以上 / システムキッチン / オープンキッチン / バス・トイレ別 / 追焚機能浴室 / 浴室乾燥機 / 温水洗浄便座 / 洗面台 / 洗髪洗面化粧台 / シャワー / 独立洗面台 / エアコン / シューズボックス / 収納豊富 / BS / 光ファイバー / ネット使用料無料 / TVモニタ付インターホン / 宅配ボックス / 複層ガラス / 防犯カメラ / 角部屋 / 初期費用カード決済可
- 契約期間
- 2年
- 賃貸区分
- 一般
- 更新料
- -
- 更新事務手数料
- -
- 総戸数
- -
- 特優賃
- -
- 取引態様
- 仲介
- 物件番号
- 102019865
- 管理コード
- C26-13971-101
- 情報更新日
- 2026年04月15日
- 次回更新予定日
- 2026年04月24日
- 備考
- 初期費用「賃貸保証要加入10,000円」
月額「保証料月額総賃料1%」
退去時「ルームクリーニング代46,200円(税込)」 -
スーパー
株式会社万代 紀寺店
391m(5分)
-
郵便局
奈良紀寺郵便局
451m(6分)
-
総合病院
市立奈良病院
620m(8分)
-
弁当
ほっともっと 奈良古市店
622m(8分)
-
スーパー
業務スーパー 奈良南店
855m(11分)
-
クリーニング
クリーナーズショップ ヤマガタ
1034m(13分)
-
銭湯
花園新温泉
1176m(15分)
-
大学
奈良教育大学キャンパス(学生生協提携店)
1265m(16分)
-
信用金庫
奈良信用金庫 奈良支店
1477m(19分)
-
コインランドリー
大型コインランドリー ホワイトベアー
1557m(20分)
-
市役所・区役所
奈良市東寺林連絡所
1558m(20分)
-
デパート
ザ・ビッグエクストラ 大安寺店
1623m(21分)
-
家電製品
ドコモショップ奈良やすらぎ通り店
1878m(24分)
-
ファミリーレストラン
和食さと 奈良神殿店
2375m(30分)
物件の特徴
セールスポイント
【インターネット使い放題無料】
室内設備はシステムキッチン・照明付き・追い焚きなど充実した設備を備え付けています。セキュリティ面は、防犯カメラ・電子キーなどを備え付けているので安心して暮らせます。こちらのアパートからは2駅が近くにあり、移動範囲も広がります。新しい生活にお勧めなのが、こちらのアパートです。できるだけ早めに不動産情報を集めたい方は当社スタッフまでご連絡ください。地域の不動産情報をいち早くお届けします。
ポイント
担当者のコメント
パノラマ画像
基本情報
設備条件
その他
ル・リアンの他の部屋
周辺施設
近隣の物件
ル・リアン
7.7万円
4,000円
1LDK(42.14㎡)









安達 竜哉
奈良紀寺郵便局まで歩いてすぐ(徒歩6分)。共用部には宅配ボックスが付いているため、家で何時間も待機する必要がありません。収納はクロゼット・シューズボックスなどが備え付けられているので、衣類や日用品の収納に重宝します。お部屋探しも楽しく。奈良市や関西本線奈良付近のことなら当社へご連絡下さい。経験豊富なスタッフがお待ちしております。